BLUE GRASS ARMY DEPOT
Building S-7 Renovations
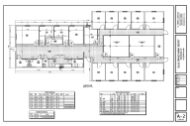
K.Hayes Limited designed and renovated buildings S-7. Work included conversion of the approximately 670 square feet of open area in the front half of S-7 into four (4) individual offices and a storage room. K.Hayes Limited constructed three (3) offices in the rear-half of S-7 (approximately 350 square feet). Project also included the expansion of the break area.

